回轉式空氣分配器
丁寶勤 13906276368(技術)
電話:0513-88400999 傳真:0513-88400998 郵箱:jszk@vip.163.com

單八嘴空氣分配器
一、概述
回轉式空氣分配器是通過閥芯旋轉,將風機送入的空氣由旋轉閥芯依次分配給各個出風口, 而獲得定時定量的壓縮空氣,再通過管道送到各均化區(配充氣箱),依次循環使粉料得到均化。
I .Brief introduction
Rotary air distributor will distribute air from fan to every outlet mouth in turn by the rotation of valve core. Obtain some compressed air and convey them to every aerating zone by the pipe. Powder material in silo can mix effectively.
二、回轉式空氣分配器原理圖(n .Principle drawing of rotary air distributor)

三、 技術參數表
型號規格 名稱 | QFFΦ500mm 單四嘴 | QFFΦ500mm 單八嘴 | QFFΦ500mm 雙六嘴 | QFFΦ500mm 四、八嘴 | |
外形尺寸 | 2160×950×820 | 1600×1700×910 | 2006×2165×1100 | 1630×1700×9100 | |
減速電機 | 擺線針輪減速機BWEY2715-1505 | 擺線針輪減速機BWEY2715-1505 | 擺線針輪減速機XWEY-106 | 擺線針輪減速機BWEY2715-1505 | |
鏈傳動 | Z1=17、Z2=68 | Z1=17、Z2=68 | Z1=19、Z2=66 | Z1=17、Z2=68 | |
分配閥名稱 | 四嘴 | 八嘴 | 六嘴 | 四嘴 | 八嘴 |
進氣口直徑(Φmm) | 100 | 100 | 150 | 100 | 100 |
出氣口直徑(Φmm) | 100 | 80 | 125 | 100 | 80 |
風量(m3/min) | 10 | 4 | 8.5 | 10 | 4 |
工作風壓(MPa) | 0.07 | 0.04 | 0.07 | 0.04 | |
閥芯轉速(r/min) | 0.25 | 0.25 | 0.288 | 0.25 | |
使用壓力上限(Mpa) | 0.1 | 0.1 | 0.1 | 0.1 | |
配套選用 | Φ8米、Φ10米生料均化庫 | Φ8米、Φ10米水泥及生料均化庫 | Φ15米、Φ18米水泥均化庫 | Φ8米、Φ10米混合式生料均化 | |
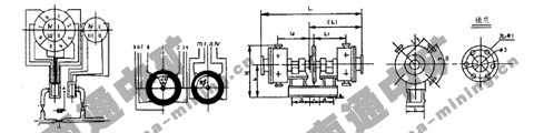
四、外形尺寸及基礎圖

回轉式空氣分配器原理圖

分配閥形狀及安裝尺寸

注:1、單四咀將鏈改聯軸器,也有鏈傳動的,運用時應標注,(L)為單邊的總長度。
2、四、八咀分配閥用直徑12米混合室庫的,其四咀閥進直徑=150,出直徑=125,也適用于7米間歇庫。












